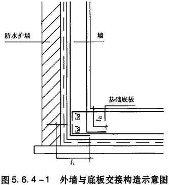
5.6 筏形基础 5.6.1 筏形基础可采用具有反梁的交叉梁板结构,也可采用平板结构(有柱帽或无柱帽)。两种形式筏形基础的比较见表5.6.1。 如何在两种常用的筏板基础类型——梁板结构与平板结构中选用适宜的类型,需要结合地基条件、基础埋深、施工条件等综合考虑: 一般情况下,梁板结构的材料消耗较少,造价较低,但比平板结构稍费工,工期也会稍长一些。但梁板筏基的高度可能比平板筏基大,例如,8m柱网的地基梁高度可能为1.50~2.0m,而平板基础的厚度可能为1.0~1.5m,所以,如果地基挖土深度是由基础高度来决定,那么采用梁板结构将比平板结构多挖几十厘米至1米多的土,在比较两种方案的经济性时,挖土量包括护坡工程量的增加、可能的降低地下水位费用的增加、竖向构件长度的增加、建筑外防水材料的增加等等应综合加以考虑。 在工期方面,一般是梁板基础较长,平板基础较短。基础类型的选择很重要的一点是工人工资与材料价格的相对比较,在发达国家及香港地区,工人工资较高,他们一般采用平板筏基,我们则一般优先选用梁板式筏基。 5.6.2 筏形基础需进行下列计算: 1 对于梁板式筏形基础: 1)验算双向板的受冲切承载力、单向板的受剪切承载力以确定基础底板的厚度。 在确定基础底板厚度时,通常可根据以往工程经验,先假定一个厚度,然后根据此厚度计算其受冲切承载力或受剪切承载力,当能满足规范要求并稍有余量时,即可确定此厚度为基础底板设计厚度,并按此厚度计算底板抗弯所需的钢筋数量。 有一种说法,认为高层建筑的基础底板厚度,可按每层若干厘米(例如每层5cm)来确定。这种说法是不科学的,也是不确切的。因为基础底板厚度,常取决于其受冲切承载力,而冲切力除了与建筑物层数有关外,与建筑物柱网区格的大小也有关。例如,同样30层的建筑物,8m柱网(开间)与9m柱网所需的底板厚度就不应该相同,4m柱网与8m柱网所需的底板厚度就完全不同。因此,单纯以层数来确定底板厚度是不可取的。 筏板基础底板的厚度,过去我们皆由板的抗冲切强度决定,数十年来从未发生任何问题。 国外规范对于各种构件,何种应当验算剪切、何种应当验算冲切,有明确规定。例如,美国与新西兰规范规定:单向受力构件例如梁(但深梁除外),验算剪切强度;双向受力构件例如双向板,验算冲切强度。而且对于验算剪切强度,规定其验算截面是横跨整个构件截面,而不是在构件中间截取一段来验算。因此,筏板基础的双向底板,仅验算其抗冲切强度即可。 2)计算基础板的弯矩,配置板受弯钢筋。 3)验算基础梁的受剪切承载力来确定基础梁的截面,并配置梁箍筋。 4)计算基础梁的弯矩,配置梁受弯钢筋。根据条件可采用倒楼盖法或弹性地基梁法计算。 5)对梁板式筏形基础中的基础梁和板,以及平板式筏基中的板,计算弯矩和剪力时,可采用净跨。 6)梁板式筏形基础底板可按塑性理论计算。 2 对于平板式筏形基础: 1)验算柱底、柱帽底面的受冲切、受剪切承载力来确定基础板的厚度和柱帽的尺寸。对于含墙的结构,还需验算墙边、墙筒周边的受冲切承载力,以及一些情况下的整体受剪切承载力。 2)计算基础板的弯矩,配置板受弯钢筋。根据条件可分别采用倒楼盖法或弹性地基梁(板)法计算。基础板应分为柱上板带和跨中板带分别配筋。 3 当柱、墙混凝土强度大于基础梁、板时,应验算柱、墙与基础交接面处的局部受压承载力。 5.6.3 筏形基础的构造应符合下列要求: 1 筏板基础混凝土强度等级不应低于C25。梁板式筏形基础底板厚度不宜小于250mm,平板式筏形基础底板厚度不宜小于300mm。 筏板基础混凝土强度等级不宜取得太高,最好不要超过C40,对于一般高层建筑,C30已足够。混凝土强度过高,水泥用量也将相应增加,在混凝土凝固过程中的收缩量及水化热等也会增大。如果养护不及时又不能维持一定天数,对于大面积基础,很容易出现裂缝。 2 在确定基础梁的截面时,应注意: 1)基础梁多数情况下宜设计成比较宽的梁,以尽量减小梁高,从而减少基槽开挖深度和梁间材料的回填量。 2)不必要因柱截面较大而加大基础梁的宽度(使其大于柱宽),造成浪费。 3)如果不能满足受剪承载力的要求,不必在整个跨度加大梁截面,而仅在支座剪力最大部位加腋即可。 4)加腋的方式有两种:竖向加腋,即在支座处将梁的高度加大;水平加腋,即在支座处将梁的宽度加大。一般情况下对于基础梁采用水平加腋的方式更合理。 3 筏形基础宜在纵、横方向每隔30~40m留一道后浇带,宽800mm至1000mm左右。后浇带位置宜在柱距中部1/3范围内。后浇带处梁、板的钢筋可不断开。后浇混凝土宜待筏板基础混凝土浇筑后不少于两个月,再行浇筑,后浇混凝土的强度等级应提高一级,并应采用不收缩混凝土。当采用刚性防水时,宜在后浇带筏板下附加防水卷材或在筏板中设置金属止水带。 图5.6.3—1中的“加强层混凝土”的做法,只适用于施工过程中需要提前停止降水时,其所配钢筋及混凝土厚度h,应按地下水产生的浮力计算而得。 4 不论筏板的板厚为多少,一般不需在板厚的中面增设水平构造钢筋。板的上下钢筋之间的支撑定位等做法,不需在施工图中详细画出。具体定位做法,应由施工单位提出,并保证在施工浇注混凝土时,钢筋位置准确、不位移。 注:有些资料中提到,当基础板厚度大于2m时,须在板厚度中间部位加一层水平双向钢筋,而且规定的钢筋直径较大,从各方面看这是不必要的。 境外某地下铁道车站,其上有30层大楼,底板厚度5.5m(跨度约11m),施工详图中板的中间来加任何钢筋。 南京新街口百货公司大楼高62层,基础底板厚3m,板中面未加任何钢筋。上海金茂大厦,筏板基础厚4m,板中面也未设任何钢筋,仅在板面另加Φ8@150双向钢筋。 由以上实例可以看出,在构造上,不设置这种钢筋完全没有问题。 有一种意见认为,如果板的厚度较大,施工时需要将底板分成两层浇捣,就需要设置中面钢筋,这种看法有问题。首先,在设计出图时并不一定有根据,施工单位要分两层施工;其次,即使分两层施工,在下层的表面设置较粗钢筋,对防止或减少混凝土收缩裂缝,并无多大作用。国外有些资料认为,粗钢筋对减少裂缝反而不利。 因此,不论基础底板厚度如何,一般不需在板厚的中面设置水平钢筋。 至于底板上下两层钢筋如何定位固定,应由施工单位根据其具体情况确定。设计单位在这方面没有必要提出钢筋支撑方案,不应在施工图中画出。 5 筏基底板的钢筋间距不应太小,一般为200~400mm,且不宜小于150mm。受力钢筋直径不宜小于12mm。 6 基础梁、板,应优先采用HRB400或HRB335钢筋(包括梁的箍筋)。基础梁箍筋直径不宜小于10mm,箍筋间距不宜小于150mm。 7 当等跨时基础板支座短筋伸至L0/4(L0为净跨)为止,不应额外加长,详见图5.6.3—2。当底板为不等跨时,应按弯矩确定钢筋长度。 8 基础梁、板的下部钢筋应有1/4~1/3贯通全跨。 9 基础梁、板钢筋的接头位置,应选择在内力较小的部位,宜采用机械连接或搭接。不应采用现场电弧焊焊接接头。 10 《混凝土结构设计规范》中规定,当梁的腹板高度hw≥450mm时,在梁的两个侧面应沿高度配置纵向构造钢筋,每侧纵向构造钢筋的截面面积不应小于腹板截面面积不会bhw的0.1%。此规定适用于常规的结构构件,对于截面面积很大的基础梁是不适用的。基础梁两侧构造钢筋的直径,可取12~16mm,间距可取200~300mm左右,并沿梁腹板高度均匀配置。在基础底板高度范围内不需配置。 11 基础梁并无延性要求,其纵筋伸入支座锚固长度,箍筋间距、弯钩等等皆应按照非抗震构件的构造要求进行设计。这样做的道理已在5.5.5.4中详述。 基础底板上回填材料顶面宜设置厚度100mm的钢筋混凝土叠合层,以利于建筑做法的选择(直接选用楼面做法)和减小外墙挡土的高度,详见图5.6.3—3。 5.6.4 设计时需注意和考虑的问题: 1 当地下水位较高,防水要求严格时,可在基础底板上面设置架空层。如为带反梁的筏基,应在基础板上皮处梁内留排水洞,其尺寸一般为150mm×150mm。 2 基础外墙与底板交接构造见图5.6.4—1。应注意外墙底部外纵筋与底板边支座钢筋要满足弯矩平衡的要求,并满足搭接长度的要求。 3 基础底板是否外挑,可按以下原则确定: 1)当地基土质较好,基底面积即使不外挑,也能满足承载力及沉降的要求,且有柔性防水层时,底板不宜外挑。 2)其他条件同第1款,但无柔性防水层时,底板可选择按构造外挑或不外挑,如外挑长度可取0.5~1.0m。 3)当地基土土质较差,承载力或沉降不能满足设计要求时,可根据计算结果,将底板向外挑出。 挑出长度大于1.5~2.0m时,对于有梁筏基,应将梁一同挑出。对于无梁筏基,宜在柱底设置平托板。 外挑板构造见图5.6.4—2。 4 当地下水位标高高于基础底面标高时,基础底板所承受的地基反力,与水位标高低于基础底面时并无不同,其平均反力皆为P=W/A,W为上部建筑(包括地下室及基础自重)的总重,A为基底面积。此概念也适用于箱基。 5 当上部结构荷载较均匀,地基受力层范围内无软弱土层、可液化土层或严重不均匀土层时,筏基可按倒楼盖方法计算(此时,有梁筏板基础的梁线刚度宜不小于柱线刚度的3倍或梁高不小于跨度的1/6,当为无梁筏板时,可取板的折算刚度)。基底反力可取平均反力,边跨跨中弯矩及第一内支座的弯矩值宜乘以1.2的系数,其余内力均不需再乘大于1的系数。 按倒楼盖方法计算筏基时,如柱荷载(F1~F5如图)相差不超过20%时,可近似按均布反力P计算见图5.6.4—3(a)。当各柱荷载相差较大,见图5.6.4—3(b),其中F3,F4较小,可分段按P1,P2计算。 6 高层建筑的基础构件,包括筏板、基础梁,当地具有在混凝土中掺粉煤灰的成熟经验时,应考虑粉煤灰对混凝土后期强度的提高作用,采用混凝土的后期强度,不采用常规的28d龄期,可以用60~90d龄期。 注:高层建筑的基础构件,如基础梁、板、或厚板基础,体积常很大。由于其受力较大,有时必须采用强度较高的混凝土,如C40(但C45及以上的强度,一般不宜采用)。当混凝土体积大,强度高时,混凝土硬化过程中产生的水化热,以及干缩造成的不利影响,常易导致基础构件开裂。 除了在施工过程中采取一系列措施以减少上述不利影响外,在设计上可以规定按60d或90d的混凝土强度,这样在同一混凝土最终强度的条件下,能够减少水泥用量,可使水化热减少,并减少收缩量。 国外对于基础的混凝土强度,不按28d而按60~90d,且已使用多年,因为高层建筑的基础要达到满荷,是数倍于60~90d之后,因此,安全上是没有问题的,而且还有上述的优点。美国一栋高层建筑,在计算风荷下的位移时,采用了180d龄期的混凝土弹性模量。台湾最近建设的“台北国际金融中心”即台北101,主体结构高90层,厚板筏基厚度3.0~4.7m,采用90d的混凝土强度。 我国的《粉煤灰在混凝土和砂浆中应用技术规程》JGJ 28中也有规定,凡掺用粉煤灰的混凝土基础,可以采用其60d强度。 因此,在设计筏基或箱基(包括桩基承台)时,在施工图上宜说明,可以采用混凝土60d或90d的后期强度。 7 地下室施工完成后,应及时进行基坑回填工作。