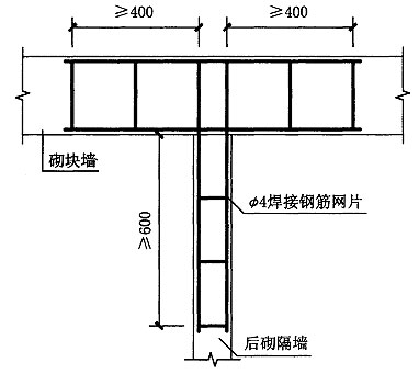
5 结构构件及构造要求 5.1 砌体墙和其他构件 5.1.1 截面尺寸要求: 1 承重独立砖柱的截面尺寸,不得小于240mm×370mm,应尽量避免采用370mm×370mm截面,不得采用柱芯填砌半块砖的包心砌法;当柱截面超过490mm×490mm时,宜采用组合砖柱、配筋砌块柱或钢筋混凝土柱; 2 承重独立砌块柱的截面尺寸不宜小于390mm×390mm,并应全部用灌孔混凝土灌实; 3 毛石砌体墙厚不宜小于350mm,毛料石柱较小边长不宜小于400mm。当有振动荷载或抗震设防要求时,墙、柱不宜采用毛石砌体; 4 承重砌体墙的厚度不应小于190mm,墙段的长度不小于490mm,对砌块墙不宜小于600mm。 5.1.2 梁下墙体设置壁柱、组合壁柱或构造柱条件: 1 对240mm厚墙,当梁跨大于6.0m时; 2 对190mm厚墙,当梁跨大于4.8m时; 3 对砌块、料石墙,当梁跨大于4.8m时; 4 壁柱的截面尺寸尚应满足独立柱的要求;梁下构造柱尚应满足第5.3节的有关规定。 5.1.3 梁端墙体设置垫块或垫梁的条件: 1 对砖砌体,当屋架跨度大于6m,梁跨大于4.8m时; 2 对砌块和料石砌体,当梁跨大于4.2m时; 3 对毛石砌体,当梁跨大于3.9m时; 4 梁端垫块应满足下列要求: 1)可采用预制或梁端现浇的刚性垫块,垫块的截面尺寸应按计算确定,但垫块的厚度不宜小于180mm,每侧挑出的长度不宜大于垫块的厚度,伸入翼墙长度不应小于120mm; 2)垫块混凝土强度不宜低于C20,垫块应配置双层焊接钢筋网片,总配筋率不应小于垫块体积的0.5%; 3)位于柱顶的垫块,其截面尺寸必须覆盖整个柱截面; 4)当圈梁与垫块相遇时应浇成整体。 5 为减少梁端支承压力对墙、柱的偏心距,可采取下列措施: 1)对跨度较大的屋架、梁或吊车梁及跨度大于12m的预应力空心板、双T形板,在砌体截面形心的垫块或垫梁顶面预埋锚固件,并与屋架或梁可靠连接; 2)对6m以上的梁可采用纠偏的带缺口的垫块。 5.1.4 墙体间的连接构造 1 墙体转角、T字或十字交接处应同时砌筑,尚应在上列部位设置拉结钢筋或拉结网片,网片从交接处伸入每侧墙体的长度非抗震时不小于700mm,抗震设防时不小于1000mm,竖向间距不宜大于400mm。当不能同时砌筑又必须留置临时间断处,应砌成斜槎,斜槎长度不应小于高度的2/3。如留斜槎有困难时,砖砌体可作成齿形直槎,但应设置4~6钢筋或焊接钢筋网,竖向间距不大于500mm,锚入竖槎两边墙体的长度非抗震时不小于500mm,抗震时不小于1000mm,砌块砌体不允许留直槎; 2 砌块墙体应分皮对孔错缝搭砌,上下皮搭接长度不应小于90mm。当搭砌长度不满足上述要求时,应在水平灰缝内设置不少于24的焊接钢筋网片(网片横向钢筋的间距不应大于200mm),网片每端均应超过该垂直缝,其长度不应小于300mm; 3 砌块墙与后砌隔墙交接处,应沿墙高每400mm在水平灰缝内设置不少于24、横筋间距不大于200mm的焊接钢筋网片(图5.1.4)。 图5.1.4 砌块墙与后砌隔墙交接处钢筋网片 5.1.5 砌体中留槽洞和埋设管线的要求: 1 应在施工图中注明相关槽洞的位置,标高及截面尺寸,交待施工要求,避免竣工后凿槽打洞; 2 不应在宽度小于500mm的承重墙小墙段及壁柱的砌体内埋设管线; 3 墙体中需设置竖向暗管时,应在施工时预留槽,槽深度和宽度不宜大于120mm,槽洞距墙端的距离不应小于370mm,管道安装后应用不低于C15的细石混凝土或不低于M10的水泥砂浆填嵌密实。当槽的平面尺寸大于120mm×120mm时,应对墙身削弱部位补强。如在槽洞两侧增设有相互拉结的钢筋网混凝土面层或钢筋砂浆面层; 4 混凝土砌块墙体,当受力较小或未灌孔的部位,允许在竖向孔洞中设置管线; 5 在墙体中水平或斜向埋设管槽的规定: 1)混凝土砌块墙体和190mm厚的多孔砖墙不允许在墙面水平或斜向预先埋设管线或预留沟槽; 2)对其它砖砌体,也宜尽量避免沿墙面水平或斜向穿行暗管线或预留沟槽,当无法避免时,对240mm和370mm墙,沟槽深度不应大于15mm~20mm,沟槽距洞边的距离不应小于500mm,沟槽之间的距离不应小于最长沟槽长度的2倍,沟槽只允许在墙的一侧留槽,并应设置在楼层之上或之下的1/8范围内;超出上述规定时,应采取必要的加强措施,或按削弱后的截面验算墙体的承载力; 6 宜尽量避免管道穿墙垛、壁柱,确实需要时,应采用带孔的C20混凝土块预埋; 7 墙体中预留的电器开关箱,消防栓箱等洞口宜选择在受力较小的墙段,否则应进行承载力验算或采取加强措施; 8 当门洞宽≥2.0m时,对砖砌体宜在洞口设置钢筋混凝土门框或构造柱,对砌块砌体应在洞边的1~2个孔中设置钢筋混凝土芯柱。当该墙为刚性或刚弹性房屋的横墙时,其洞口宽度不宜大于墙长的1/2。